3088 LAZY A STREET - Todd Conner Real Estate
Back

3088 Lazy A Street, Coquitlam

Coquitlam, Ranch Park

Sold $1,499,900
  • Address: 3088 Lazy A Street, Coquitlam
  • Postal Code: V3C 3N9
  • MLS® Number: R3090540
  • Listed By: Royal LePage West Real Estate Services
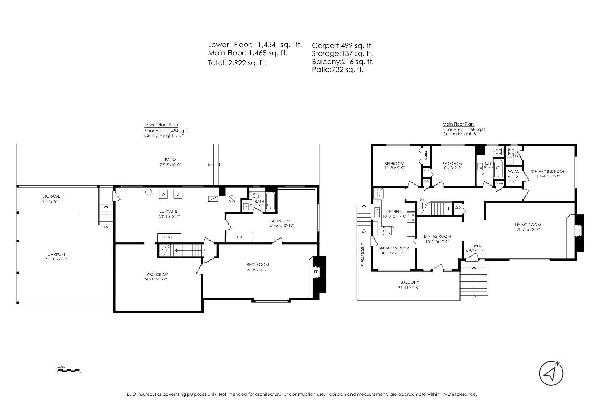
  • Year Built: 1959
  • Style: Rancher/Bungalow w/Bsmt.
  • Lot Size: 9,900 Sq ft
  • Tax: $5,912.25
  • Tax Year: 2025
  • View: Mountain
  • Features:
    Washer/Dryer Dishwasher Refrigerator Stove Storage Hot Water Radiant Hardwood Wall/Wall/Mixed Other Public Public Sewer Sanitary Sewer Storm Sewer Electricity Connected Natural Gas Connected Water Connected Window Coverings Wood Burning In Unit
  • Site Influence:
    Central Location Recreation Nearby Shopping Nearby Garden Private Yard Carport Multiple Front Access Asphalt Patio Deck
ENDLESS POTENTIAL ON A PRIME VIEW LOT! Tucked at the end of a quiet cul-de-sac in sought-after Ranch Park, this solid original-owner home sits on a 9,900 sq ft lot with sweeping views and offers over 2,900 sq ft of living space, larger than many homes in the area. Featuring four bedrooms, three bathrooms and excellent suite potential, it’s mostly in original condition and ready for renovation, customization or long-term investment. A rare opportunity to create significant value in an established neighbourhood. Close to parks, top-rated schools, shopping and transit. Properties of this size and setting in Ranch Park are hard to find.

Mortgage Calculator

Mortgage Amount:
Monthly Payment: